REF.: GV21884

Loft
PINHEIROS

São Paulo-SP
Loft | Residencial
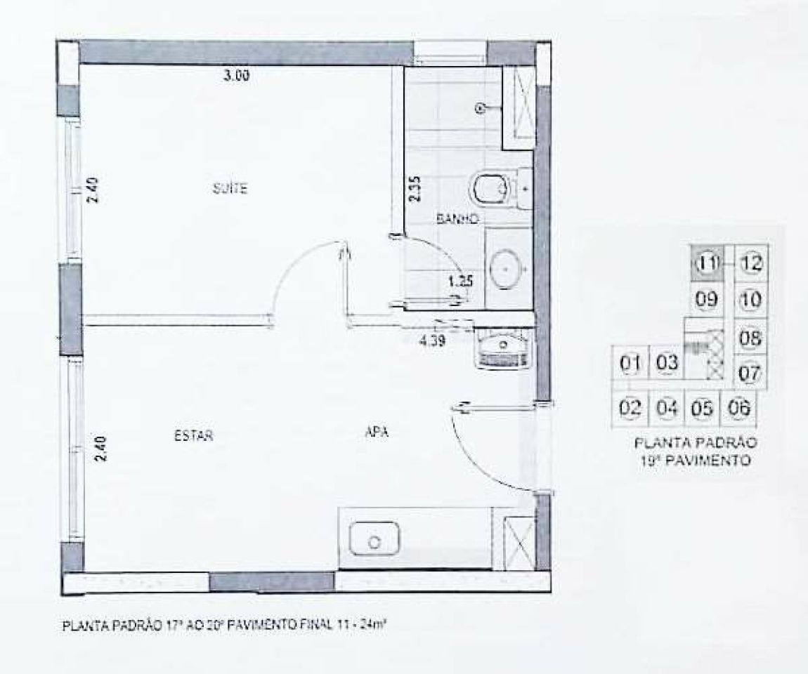
24M² AU
1 DORM(S)
24M² AT
R$ 11,00 CONDOMÍNIO
R$ 1,03
IPTU
Venda R$343.260,00

Descrição do Imóvel

DIFERENCIAIS DOS APARTAMENTOS - Um mix de medidas de sustentabilidade para economizar condomínio e colaborar com o meio ambiente. - Revestimento cerâmico nas paredes da cozinha, da área de serviço e do banheiro* - Bancadas de granito na cozinha e no banheiro - Cuba inox na cozinha e tanque de louça na área de serviço - Persianas de enrolar nos dormitórios - Tomada USB nos apartamentos com varanda ACABAMENTOS DOS APARTAMENTOS SALA DE ESTAR / JANTAR - Piso: contrapiso cimentado - Paredes: pintura látex - Teto: pintura látex - Complementos: tomadas de uso geral COZINHA / ÁREA DE SERVIÇO - Piso: contrapiso cimentado - Paredes: cerâmica nas paredes hidráulicas - Teto: pintura látex - Complementos: bancada de granito com cuba de inox e torneira - Tanque de louça com torneira - Tomadas de uso geral DORMITÓRIOS - Piso: contrapiso cimentado - Paredes: pintura látex - Teto: pintura látex - Complementos: tomadas de uso geral - Tomada USB no dormitório principal BANHO - Piso: cerâmica - Parede: cerâmica - Teto: pintura látex sobre forro de gesso - Complementos: bancada de granito com cuba de louça e torneira - Tomadas de uso geral

Localização aproximada